Thomson House by C.Kairouz Architects
An Updated Compact Home on a Tight Site that’s Big on Personality, Playful Details & Space.
Charming period style meets new world sensibilities in this unique, compact home in Northcote, Melbourne. The Thomson House combines creative ideas, shared spaces, and contemporary character to lift an old cottage into the modern-day, providing a refreshing extension that is light-filled with playful details, functional living & spaciousness.
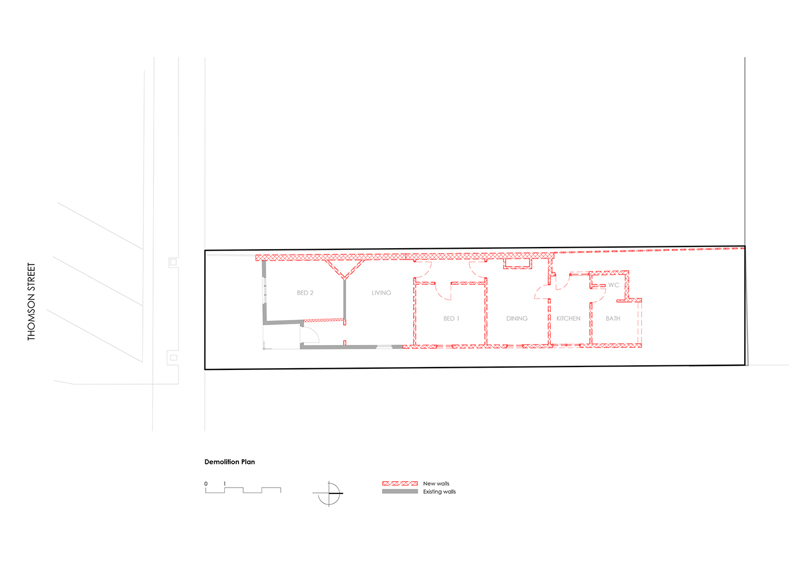
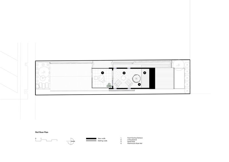
The extension & retrofit to the quaint heritage home sought to provide an efficient response to the challenging small lot—the program aimed to balance how much to keep and how much to demolish. Maximize space and improve livability with an open, free-flowing floor plan that makes sense when combined with the existing layout.
Architects: C.Kairouz Architects
Area:126 m²
Year: 2021
Photographs: Emily Bartlett
Manufacturers: Colorbond, Dulux, Inlite, Plyco, Smeg, Viccarbe, ABI Interiors, Academy Tiles, Corian, Downdraft, Fisher and Paykel, Highgrove, Nagoya Mosaic-Tile, Prodigg, Safety Net Australia, Stone Ambassador
Project Management: Shepherd Consulting Group
Builder: JRC Builders
written by : Hana Abdel
3 Aug 2022
published in : archdaily.com
Last Posts

Chandon Australia by Foolscap Studio

LINA Architecture Platform Program

IN BED Armadale Store by Flack Studio

Host House by Splinter Society Architecture

Thomson House by C.Kairouz Architects



























